新闻中心

搜索:

防火阀:图纸、特性文件表填写规范

文章来源:鑫佳通 作者:排烟防火阀小编 发布时间:2017-04-28 09:52:43 浏览次数:16721




总体要求:

1. 所有图纸幅面为A4。

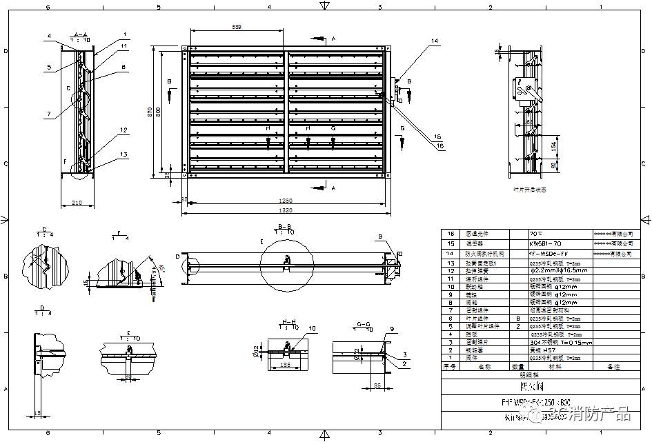
2.图纸设置有三视图(主视图+俯视图+侧视图)、局部放大图(适用于不便于标注尺寸、不便于表示清楚结构的地方)、标题栏、明细栏及其他需要标注的内容。

3. 图纸标题栏至少需要标明内容:

① 样品名称(必须与认证申请名称一致);

② 样品型号规格(必须与认证申请型号规格一致)。

③ 执行标准号(如:GB 15930-2007)。

4. 图纸中需标注认证企业名称,需加盖公章。

防火阀门产品图纸的其他要求:

防火阀门产品(排烟阀、防火阀、排烟防火阀)图纸除基本要求外,尚有以下要求:

1.局部放大图应体现挡板尺寸结构、叶片形状、弹簧设置等。

2. 至少需要标注尺寸:(注:相同尺寸仅标一处即可;核实数据的准确性。)

① 防火阀外形尺寸、公称尺寸、阀体厚度、法兰宽度;

② 叶片宽度、高度;

③ 叶片与阀体之间缝隙(适用时);

④ 挡板尺寸。

3. 至少需要标注结构:

① 阀体结构;

② 叶片结构;

③ 叶片与阀体之间、叶片与叶片之间的搭接形式。

④ 挡板设置位置

⑤ 连杆设置位置;

⑥ 弹簧形式及设置位置;

⑦ 执行机构底板、外壳结构、棘轮、凸轮、转轴(需结合执行机构图纸和检验报告)。

4. 材料明细表需要标明内容:

① 关键元器件(执行机构、温感器、感温元件)的名称、型号规格、生产单位;

② 零配件的名称、型号规格(不需注明生产单位);

③ 必须标注阀体、叶片、挡板材质及厚度。材质标注应明确(如Q235冷轧钢板)。

5.另需提供执行机构的报告、执行机构图纸。

图纸中经常出现与实物不符的问题,现场需核实:

1. 核实阀上执行机构的数量。执行机构的形状、手柄图上与实物不符。

2. 接口法兰的工艺结构(焊接、铆接、材料等)照片、图纸、实物不一致。



特性文件表的填写规范:





上一条:风机轴承座漏油的处理 下一条:铝合金双层百叶风口的分类和应用范围 返回列表